Die Raumakustik bildet das Rückrad aller Heimkinos. Hiermit steht und fällt zum Großteil der atemberaubende Sound und verkommt zu Gegrolle. Aber warum ist Raumakustik überhaupt wichtig und kann man wirklich selber was daran beeinflussen?
Warum überhaupt die Raumakustik optimieren?
Mit dem Film und auch Musik haben wir eigentlich schon das mit komplexeste Hobby für die Raumakustik herausgesucht. So haben wir es beim gucken eines Filmes mit einer Vielzahl an Frequenzen zu tun. Den Kern bildet immer die Sprache hier kann man sagen, dass sich diese in einem Bereich von 250Hz — 2.000 Hz bewegt. Darüber hinaus haben wir aber ebenfalls tiefe Bässe welche sich dann zwischen 16Hz und 80Hz bewegt. Aber auch dazwischen gibt es Kickbässe oder oberhalb der Sprache, welche sich unter Umständen bis 20.000Hz oder höher erstrecken können.
Unterschiedliche Frequenzen haben aufgrund ihrerer Ausbreitungsgeschwindigkeit auch unterschiedliche Symptome im Raum, warum man diesen optimieren sollte. So kennt sicherlich ein jeder das Dröhnen eines Subwoofers oder den Hall in einem Raum, welcher die Sprachverständlichkeit enorm einschränkt. So führen uns so Probleme dazu den Ton entweder lauter zu machen, damit die Sprache besser zu verstehen ist, oder eben leiser damit der Bass nicht so dröhnt.
Die Technik-Industrie ist natürlich ebenfalls einfältig und gibt uns Nutzer eben jener ebenfalls Tools und Einstellungen in ihren Produkten an die Hand um hier gegen zusteuern. Z.B. lässt sich der Subwoofer manuell in seiner Lautstärke beschränken. Oder aber der Subwoofer hat einen DSP eingebaut und wir können das Frequenzverhalten von ihm damit beeinflussen. High-Endigere Geräte verfügen eventuell über ein eigenes Einmesssystem. Hier sind die Lösungen vielfältig und sicherlich auch nützlich.
Zuerst sollte immer der Raum optimiert werden.
Aber sind die technischen Lösungen noch so gut, geht dies immer mit einem Verlust von Klang und Kompromiss einher. Und hier empfehlen wir immer erst zu gucken was man an seinem Raum machen kann um eventuell vor diversen Einstellungen ersteinmal eine Basis herzustellen. Denn manches ist einfacher als man glaubt und lässt sich auch in Wohnzimmer-Heimkinos anwenden ohne das die Frau gleich die Scheidung einreicht.
Zuerst sollten wir in die Planungsphase gehen. Und hier hat sich für uns ersteinmal die Frage gestellt: Wie anfangen?
Tools
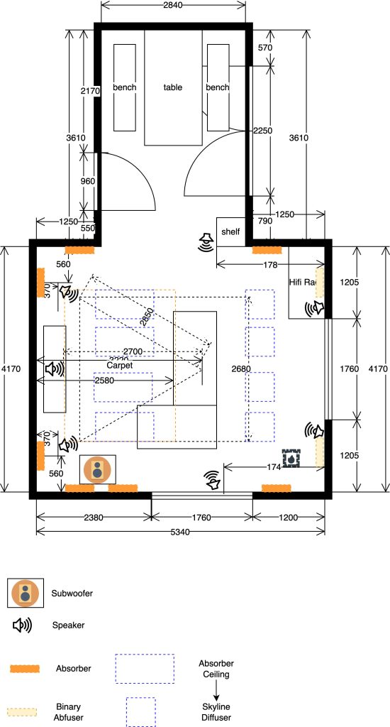
Wir haben nach einem einfachen Tool gesucht, welches uns die Planung auf dem Papier erspart und uns sofort digital arbeiten lässt. Nach einigen Gehversuchen mit Raumplanungstools oder Konsorten ist irgendwie aus unserem regulären Job die Idee zu draw.io gekommen. Das Tool kann komplett kostenlos im Browser oder als App benutzt werden und liefert im Grunde alles was wir benötigen.
Nachteil alleinig ist, dass wir hier mehr oder minder manuell zeichnen müssen und unseren Maßstab eigenständig wählen. Also ich kann hier keine Längen von Wänden eigeben und das Tool passt diese dann an. Aber: dadurch das ich die Längen selber beschrifte sind die Maße eindeutig und die Darstellung weicht lediglich geringfügig ab.
Wie beginnen?
Zuerst haben wir uns draw.io geschnappt und geguckt, dass wir irgendwie einen Grundriss zeichnen können.

Hierzu kann man in der Suche auf der linken Seite einfach nach “wall”, “door” und “window” suchen und findet schnell passende Elemente, welche man einfach in seiner Zeichnung platzieren kann. (siehe Bilder)


Haben wir schon mal eine grobe Skizze mit Wänden, Fenstern und Türen, sollten wir uns auf machen und entweder den Grundriss oder aber den Zollstock zur Hand nehmen, um die Zeichnung mit Längen zu versehen.
Auch hierfür bietet draw.io das passende Element, welches wir in der Suche mit “measure” direkt finden und in unserere Zeichnung ziehen können. Hier platzieren wir einfach das Element an einer der Wände und mit einem Doppelklick ergänzen wir noch die jeweiligen Werte.

Mit ein wenig Geduld und Übung haben wir nun eine wundervolle Grundlage zur weiteren Planung unserer Raumakustik und darüber hinaus des kompletten Raumes.
Natürlich bietet draw.io auch die Möglichkeit das gemalte zu exportieren. Sei es als einfaches Bild, PDF oder Vektorgrafik. Will heißen: wir schaffen hier nicht nur die Planungsgrundlage sondern können hiermit ebenfalls unsere Gedanken digital teilen und so vielleicht einem Raumakustiker unsere Raumsituation detailiert darstellen.
Hier können wir euch nur empfehlen, die Zeit zu nehmen und euch so eine Zeichnung anzulegen. Das macht nicht nur Spaß und schafft wahnsinnige Vorfreude, es lässt auch schnelle Änderungen zu. Wir haben einige dieser Zeichnungen ebenfalls ausgedruckt und immer wieder erst einmal mit Bleistift skizzen ergänzt um die Ergebnisse später wieder nach draw.io zu übertragen.
Wie eine work in progress Planung, welche schon fortgeschrittener ist Aussehen kann haben wir euch zum Abschluss dieses Artikels noch einmal angehangen. Ihr werdet in Zukunft immer wieder unsere Zeichnungen in den Artikeln finden, da wir denken, dass dies die beste Möglichkeit ist das zu verschaubildlichen.

Du muss angemeldet sein, um einen Kommentar zu veröffentlichen.