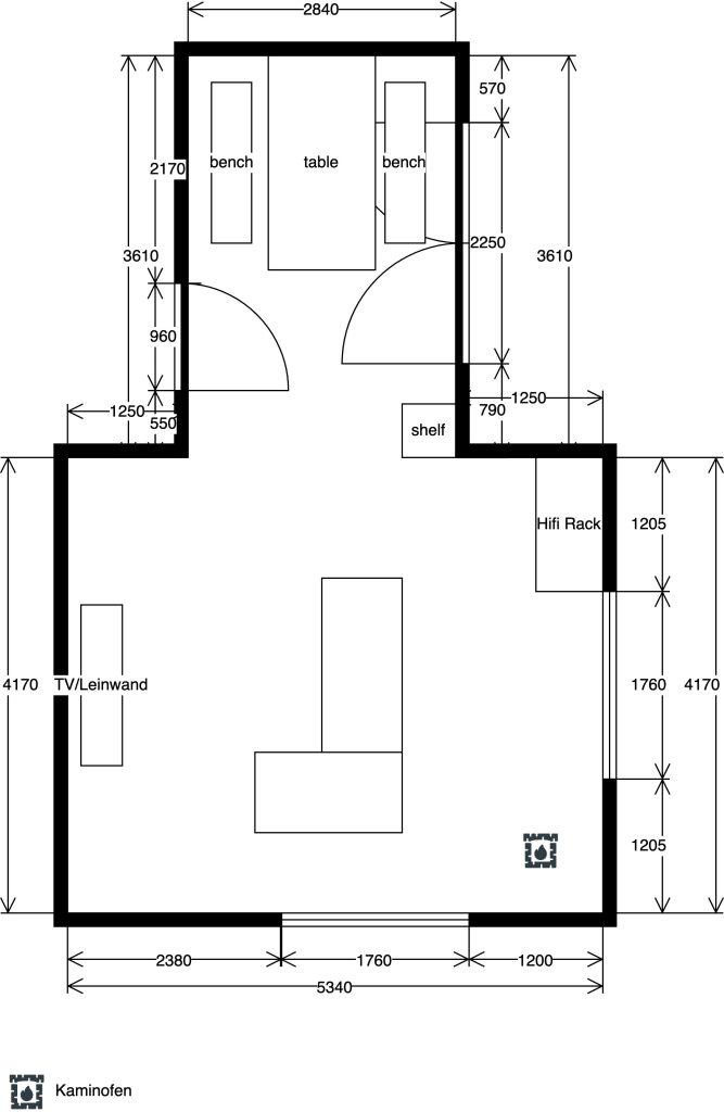
Nachdem wir die generelle Planung mit einer kleinen Einführung in draw.io versehen hatten, dem Tool welches wir einsetzen um unsere Skizzen zu machen, wollen wir hier ein wenig auf die Sitzposition eingehen.
Sitzposition
Hier hat man schon einiges an Potential, welches die Akustik maßgeblich beeinflussen kann. Wenn man sich denn traut…

In unserem Review-Kino saßen wir ziemlich in der Raummitte. Einfach weil es der Platz gebietet und der Abstand beim Sitzen an der Rückwand, wie dies häufig in Wohnzimmern gewählt wird, jeden noch so großen Fernseher, winzig macht. Jetzt hat diese Position natürlich Nachteile. Klar, sie ist in Raummitte und gefühlt hat man hinter dem Sofa toten Raum. Aber akustisch betrachtet leidet diese hier schon enorm, denn Ton wird durch Wände und Fenster reflektiert. Ton breitet sich gleichmäßig aus und durch die Symetrie, welche durch eine mittige Sitzposition entsteht, kommt der reflektierte Ton natürlich relativ gleichzeitig wieder an der Hörposition an. Dadurch entsteht viel Nachhall an der Hörposition. Bässe überlagern sich und der Klang wird stark beeinflusst. Dies ist ein Umstand, welchen wir zu Lasten des Sitzabstands natürlich anpassen wollen.
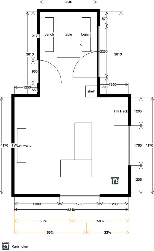
Allgemeiner Konsens ist hier, dass sich die Sitzposition optimalerweise im hinteren drittel des Raumes, bestenfalls auf der 33% Marke, befinden sollte.

Warum eine die Sitzposition an der Rückwand nicht Ideal ist
Oft sitzen die Menschen in ihren Wohnzimmer mit dem Rücken an der Wand. Dies hat den Cham, dass man maximale Fläche im Raum zur Verfügung hat. Diese Position hat aber auch gleich mehere Nachteile. Hier wäre zum einen, dass von der Rückseite reflektierter Ton direkt wieder am Ohr ist und nicht viel von seiner Energie verloren hat. Das beeinflusst das Hörgefühl schon immens. Aber die wandnahe Aufstellung macht auch Probleme mit Surround-Lösungen. So können zwar 5.1 Systeme gestellt werden, aber wenn der Wunsch zu einem 7.1 System besteht, sieht dies schon wieder schwieriger aus, da die Surround-Backs quasi direkt im Nacken hängen. Natürlich kann man dies wieder durch Lautstärke und so einigermaßen hinbiegen, aber rückt man das Sofa einfach ein wenig von der Wand ab, gewinnt man gleich auch ein wenig besseren Klang.
Einfach Ausprobieren!
Deswegen: Einfach mal die Couch nehmen und ein wenig ausprobieren! Das ist sicherlich eine der günstigsten Optimierungen im Heimkino. Wir waren erstaunt wie sich das Klangbild durch 50cm Unterschied schon zum Besseren oder Schlechteren gewendet hat. Natürlich ist man immer ein wenig eingeschränkt durch die jeweilige Wohnsituation und muss sich arrangieren. Das ist normal und wird immer wieder vorkommen. Es gibt nunmal nicht immer die perfekte Welt die es einem erlaubt sich auszutoben. Aber wie oben schon erwähnt können kleinere Anpassungen auch schon einiges bewegen und selbst wenn die Regierung einem Zuhause nicht alles gestattet, wird sicherlich bei ein paar Centimentern nicht unbedingt der Haussegen schief hängen.
Du muss angemeldet sein, um einen Kommentar zu veröffentlichen.