Elf Jahre hat mich mein Denon X4000 durchs Heimkino begleitet. Viele Setups, viele Testgeräte, viele Abende. Bis er eines Tages...
Disney+ verkauft „Premium“ – und liefert in Deutschland zunehmend Sparflamme. In einem aktuellen Bericht ist von 4kfilme.de der nächsten Eskalationsstufe...
·
Einleitung: Wandel im Blog – Vom Horror zur HiFi-Welt Viele werden es bemerkt haben. Einige andere haben uns nur gefunden,...
Die IOTAVX AVX 17 AV-Vorstufe war für mehrere Monate unser audiophiler Mitbewohner. Genau genommen hatten wir das komplette IOTAVX AVX17...
·
Nach dem überwältigenden Erfolg in den deutschen Kinos ist es endlich soweit: Der mit Spannung erwartete Blockbuster GLADIATOR II ist ab sofort...
Bei Subwoofern geht uns ein Herz auf. Nicht weil der Proficient FDS-12 jetzt eine Revolution ist, sondern weil für gute...
·
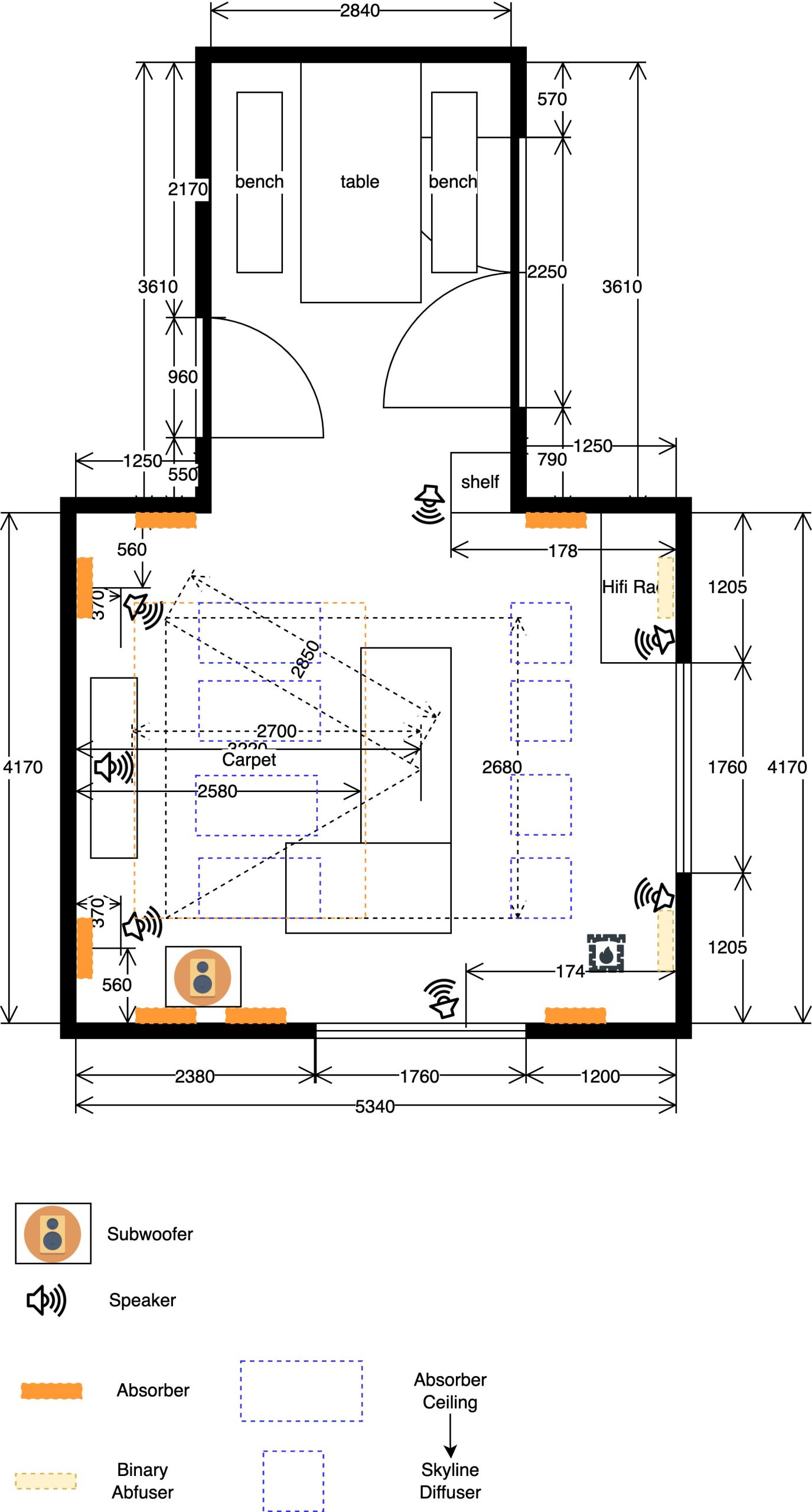
Wir hatten es gestern schon erwähnt: wir haben angefangen unsere Screening-Situation zu optimieren. Hierfür haben wir massiv umgebaut und haben...
Wer kennt das Dilemma nicht? Fernseher kaputt, man will “upgraden” oder sonstige Gründe bringen einen dazu auf die Suche nach...
Okay, das ist ein Ding. miniDSP — die Jungs, die man bisher mit kleinen DSP-Kisten und Messmikrofonen verbindet — bringen...
Die Arcam Radia AVA-Familie ist da — und sie macht unmissverständlich klar, wo Arcam im Heimkino-Segment stehen will: nicht beim...
·
Die Gerüchteküche brodelte schon lange, jetzt ist es amtlich: Harman International, Tochtergesellschaft von Samsung, übernimmt die Sound United Audiosparte von...
·
Hagen – Im Tal der Nibelungen: Ein bildgewaltiges Filmevent fürs Heimkino Ab dem 6. März 2025 erobert Hagen – Im Tal...
·
Acoustic Energy war in unserer Wahrnehmung immer ein wenig unter dem Radar. Generell ist HiFi und Heimkino als Hobby ja...
Eigentlich wollte ich gerade einen Test für einen Subwoofer schreiben. Dabei ist mir aufgefallen, dass ich noch nicht’s zum Thema...
·
Ach… ich wollte mich schon länger hinsetzen und mal ein wenig “bloggen”. So auch mal ein Recap zum gerade verstrichenen...














